上海证券大厦,位于上海市浦东陆家嘴金融贸易区,为上海证券交易所所在地。
上海证券大厦建筑面积约10万平方米,是一座集高档写字楼、证券交易、高级国际俱乐部等设施于一体的5A智能化大厦。

上海证券大厦是一座集建筑美学与现代科学为一体的智能型建筑,大厦由加拿大WZMH建筑设计事务所设计,采用敞开式巨门的造型,在西端建筑之间凌空横跨63米大型天桥。
上海证券大厦立面外罩银白色铝合金板的米字型网,显露出全钢结构的稳重与坚固,整个建筑极富时代感。

上海证券大厦于1997年12月19日正式启用。上海证券大厦总建筑面积10万平方米,主要功能是交易、办公。大厦共27层,九层以下为上海证券交易所新址,3600平方米的无柱交易大厅,可提供1810个交易席位,能满足3000多位交易员同时交易,堪称亚洲之最!上海证券大厦由保利集团经营管理。

| 所属区域 | 浦东陆家嘴 |
| 房屋类型 | 写字楼 |
| 开发商 | 浦利房地产发展有限公司 |
| 物业管理公司 | 保利物业 |
| 总层数 | 27层 |
| 物业管理费 | 31.48元/平方米.月 |
| 电梯品牌/数量 | 富士通客梯12部,货梯2部 |
| 车位/费 | 地面27个,地下197个,1000-1500元/月 |
| 空调类型 | 中央空调 |
| 空调开放时间 | 周一至五:8:00--18:00 |
| 总建筑面积 | 104000平方米 |
| 标准层面积 | 1246.16平方米,4454.48平方米 |
| 大堂层高 | 8.5米 |
| 标准层净高 | 2.7米 |
| 物业类型 | 甲级涉外写字楼 |
| 建筑结构 | 框架结构 |
| 网络通讯 | 电信、联通、移动、卫通 |
| 建筑年代 | 1997年 |
上海证券大厦这个楼分为大业主房源,小业主房源和二房东房源,目前各方业主方对外报价8元/平/天,物业费是31.48元/平/月。
更多房源信息可点击:证券大厦
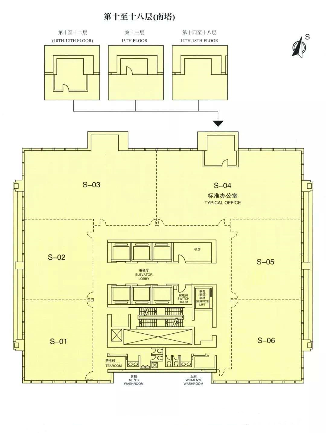
在租户型图如下:

租赁热线:18616199007





行业资讯

楼盘解析
上一篇
沪公网安备31010702008220