浦东世博滨江
浦 东-博成路568号
13号线-世博大道


In Tenant Type
Building photos
Building introduction
写字楼
1700平
17
70%
2019
中国黄金
36元/平米•月
净高2.9米
VAV中央空调系统
客梯4部,货梯1部
地下150个
是
中金上海大厦由中国黄金集团有限公司投资建设的中国黄金大厦(又名中金上海大厦)位于上海市浦东新区世博园B片区央企总部聚居区博成路568号,距离中华艺术宫约1公里左右,西邻长清北路和世博文化公园,北临博成路和世博集团大厦,东临中国商飞大厦,南邻博航路和中化大厦,上海轨道交通13号地铁世博大道站1号口设在大厦内的A栋。

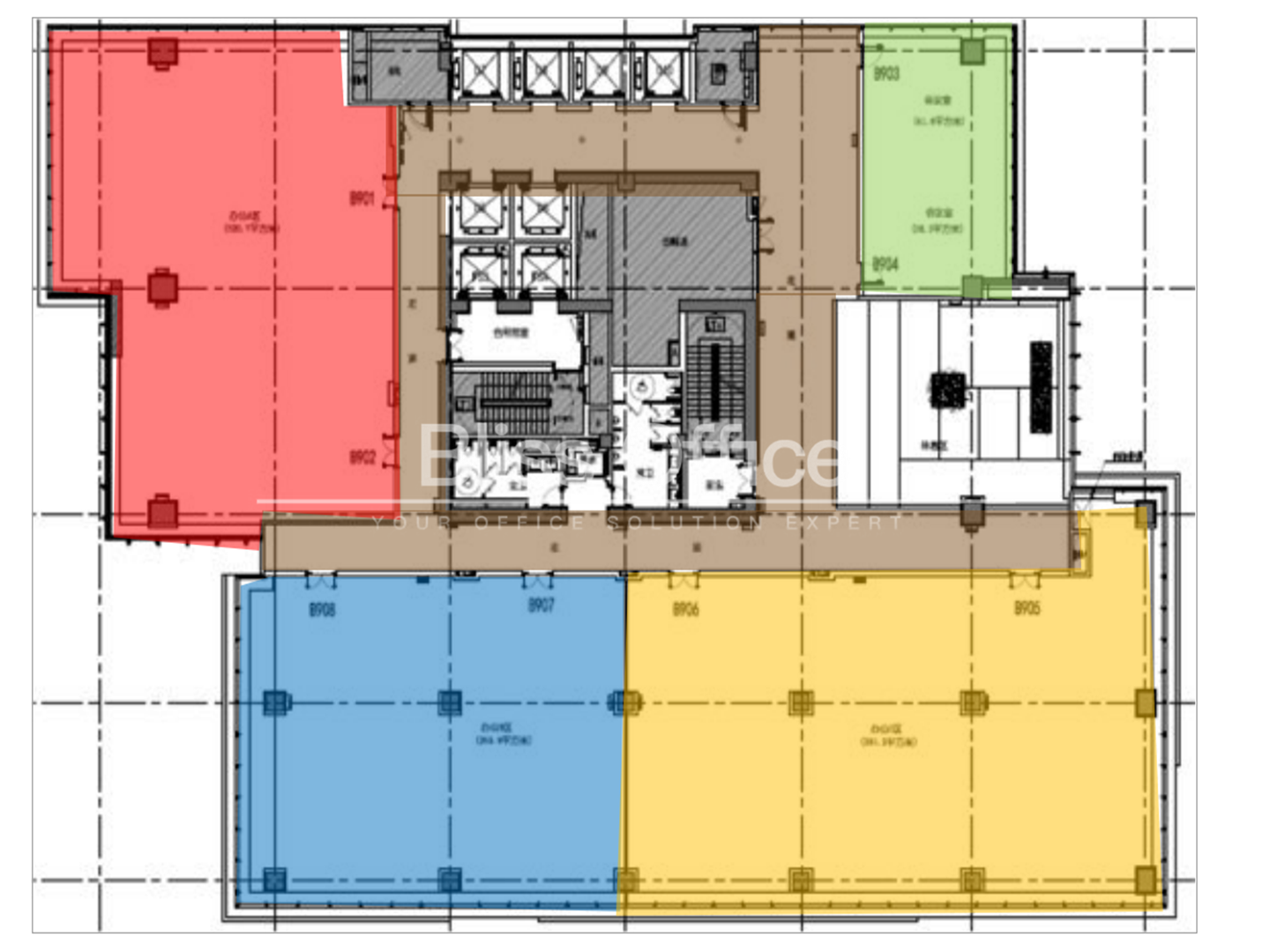
中金上海大厦分A、B两栋,用地8665.6平,建筑面积67361.2平(其中地上面积43330平,地下24031.2平)容积率5,绿地面积1386平,绿地率16%,道路广场面积1600平,是集商业、办公、餐饮、文化娱乐、智能化为一体的综合性商厦。A座(北楼)共十层,高度50米,单层面积1700平。其中3~9层为商务办公,层高4.4米,10楼为大会议室和多媒体会议室,层高6米。
目前此栋对外出租面积65平~1700平之间,大小可分割。
B座共14层,高度70米,单层建筑面积1700~1800平,3~14层为商务办公,层高4.4米,可分割,卢浦大桥行驶车辆可直接看到此大楼。
租金价格:办公:5.5元~8元/平/天左右,物业费35元
商业:6.0-10元/平/天左右,物业费45元
Public transit
浦 东浦东世博滨江博成路568号

How To Commissin Bliss Office
