前滩后滩
浦 东-济阳路158号
6号线-上海儿童医学中心、8号线-东方体育中心、11号线-东方体育中心


In Tenant Type
Building photos
Building introduction
写字楼
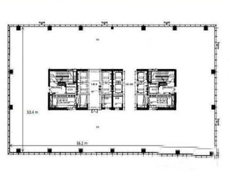
2000平
32层
70%
2016年
贝思特物业
28.00元/㎡·月
3米净层高
VAV中央空调系统
是
前滩世贸中心一期商业项目定位为写字楼配套商业,不仅配备了企业所需的银行、便利店、餐饮等日常业态,还引进了高品质、国际化的全科诊所与牙科诊所、健身会所,满足现代白领对健康及医疗的需求。此外,草莓视频下载地址还携手国际教育机构完成办公楼幼儿托管中心的引进,升级了办公楼服务配套理念,消除白领上下班接送儿童的后顾之忧,实现真正的“零步教育”可能。

Public transit
浦 东前滩后滩济阳路158号

How To Commissin Bliss Office
