大虹桥
闵 行 -申长路988弄
2号线-虹桥火车站、10号线-虹桥火车站、17号线-虹桥火车站


In Tenant Type
Building photos
Building introduction
写字楼
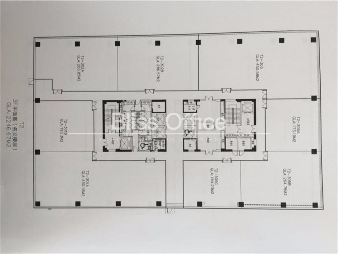
2200平
9层
70%
2016年3月
万科物业
33元/平米•月
净高3.0米
VAV中央空调系统
4部客梯,1部货梯
地下1012个
是
虹桥万科中心,是万科集团在上海的首个商业综合体项目,更是集超甲级现代商务办公楼、商业、文娱、教育为一体的生态能量办公乐园。
虹桥万科中心地处虹桥商务区核心,接壤虹桥交通枢纽,联动长三角城市群。总占地面积约32,000m2,总建筑面积约197,000m2,其中办公建筑面积约98,500m2,商业建筑面积约34,000m2其中包括两家联合办公产品:wzwork和p2。
虹桥万科中心由七栋钻石型建筑及围合式下沉广场组成,建筑外观如宝石般通透独特,花园般的景观设计别具一格。全项目获LEED GOLD及国家绿色三星认证,国际设计团队倾心打造高品质绿色商务空间。创新的能量补给型商业业态和以智慧为核心的万科新型物业服务,专为虹桥商务区精英量身定制。
虹桥万科中心以“着眼未来,不断创新”为目标,致力于为顾客同时实现高端商务服务与精致生活享受,打造未来办公典范。
虹桥万科中心由七栋建筑与一个下沉式广场组成,总占地面积约3.2万平方米,其中写字楼建筑面积约9.3万平方米,商业建筑面积约3万平方米。七栋建筑如钻石般通透独特,花园般的景观设计别具一格。值得一提的是,全项目获LEED GOLD及国家绿色三星认证,这标志着虹桥万科中心高品质的绿色商务空间。

虹桥万科中心每栋办公楼均拥有符合私人定制高端办公的硬件要求,无柱式设计实现高得房率,尽享开阔视野;3米的层高、架空地板、可拆卸楼板轻松实现跨层办公,可以让业主灵活设计空间。全石材装饰的9米挑高大堂,行政电梯及行政卫生间,为大型及跨国企业提供国际A级私人定制的办公场所。
除办公空间的私人定制外,虹桥万科中心的商业部分也独具匠心,为白领一族量身定制补充能量的特色业态。引入满足白领味蕾需要的各国餐饮美食,符合白领需求的小资休闲娱乐商户,工作闲余时光的文化概念店以及便捷舒适的生活服务等。这精心的布局,将为在此办公的白领人群,带来前所未有的快乐办公体验。
在商业地产蓬勃发展的今天,许多做商业地产的开发商都在强调O2O的线上与线下的结合。唯独虹桥万科中心,通过云服务中心,将商业地产带向了O2M的时代。
Public transit
闵 行 大虹桥申长路988弄

How To Commissin Bliss Office
