1. 草莓视频下载地址,草莓APP在线观看,草莓黄片软件下载,草莓视频成人在线无限观看

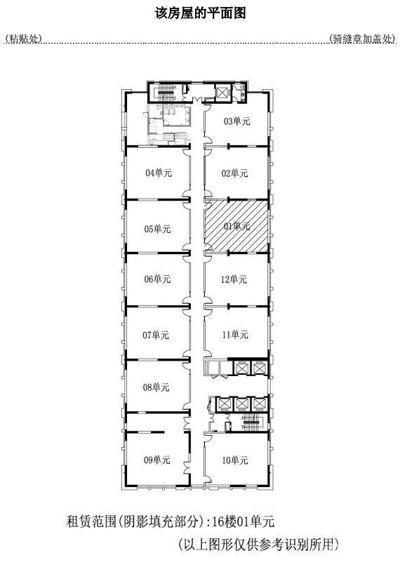
      品尊国际中心出租地铁口loft性价比超级高

      分享
      1.34 万元/月
      • 单价:4.0元/㎡/天
      • 物业费:25.0元/㎡/月
      110㎡
      建筑面积
      25-35人
      容纳工位
      带装修家具
      装修
      • 普 陀-普陀其他
      • 7号线-岚皋路
      • 品尊18英尺

      房源专属顾问为您服务

      预约看房

      公共交通

      Public transit

      品尊18英尺

      普 陀普陀其他岚皋路597号

      网站地图