1. 草莓视频下载地址,草莓APP在线观看,草莓黄片软件下载,草莓视频成人在线无限观看

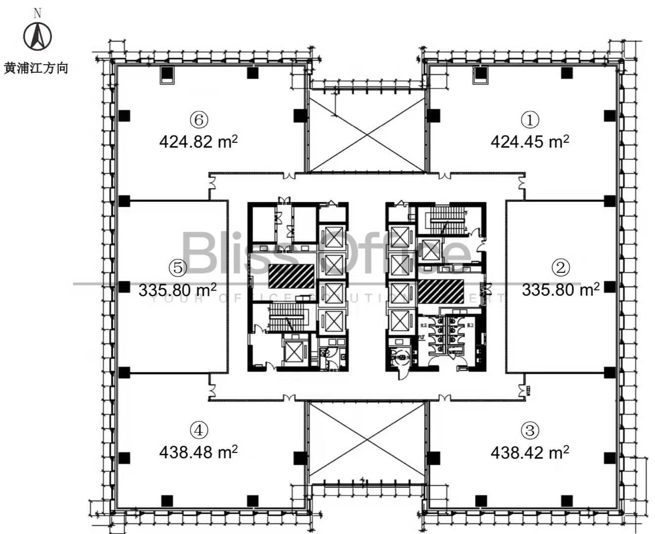
      瑞明大厦出租分割335.80方标准交房看陆家嘴

      分享
      9.75 万元/月
      • 单价:9.0元/㎡/天
      • 物业费:40.0元/㎡/月
      356㎡
      建筑面积
      25-35人
      容纳工位
      标准交房
      装修
      • 浦 东-陆家嘴
      • 4号线-浦东大道、14号线-浦东南路
      • 瑞明大厦

      房源专属顾问为您服务

      杨亦晗Cassie

      13167276699
      预约看房

      公共交通

      Public transit

      瑞明大厦

      浦 东陆家嘴即墨路

      网站地图