1. 草莓视频下载地址,草莓APP在线观看,草莓黄片软件下载,草莓视频成人在线无限观看

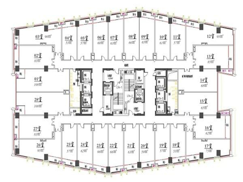
      解放日报大厦,600平标准交付,电梯口,可分割多种面积

      分享
      10.40 万元/月
      • 单价:5.7元/㎡/天
      • 物业费:28.0元/㎡/月
      600㎡
      建筑面积
      50-80人
      容纳工位
      带装修家具
      装修
      • 黄 浦-南京东路
      • 2号线-南京东路、10号线-南京东路
      • 解放日报大厦

      房源专属顾问为您服务

      徐佳乐Jerry

      13052210023
      预约看房

      公共交通

      Public transit

      解放日报大厦

      黄 浦南京东路汉口路300号

      网站地图