1. 草莓视频下载地址,草莓APP在线观看,草莓黄片软件下载,草莓视频成人在线无限观看

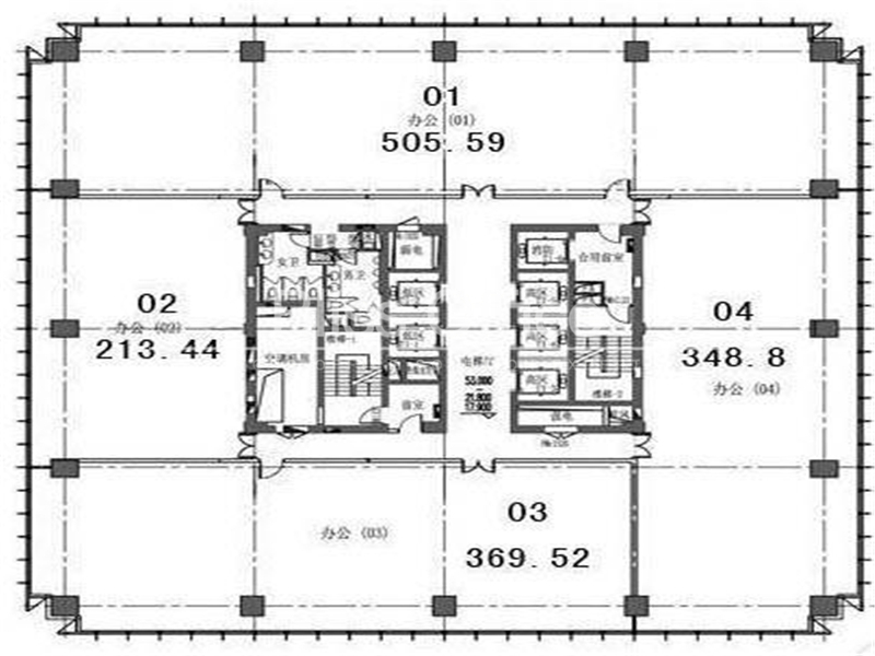
      古北商圈,东银中心出租稀少213方户型,高岛屋旁

      分享
      5.83 万元/月
      • 单价:9.0元/㎡/天
      • 物业费:33.0元/㎡/月
      213㎡
      建筑面积
      20-40人
      容纳工位
      标准交房
      装修
      • 长 宁-虹桥古北
      • 10号线-伊犁路
      • 东银中心

      房源专属顾问为您服务

      杨亦晗Cassie

      13167276699
      预约看房

      公共交通

      Public transit

      东银中心

      长 宁虹桥古北红宝石路500号

      网站地图