1. 草莓视频下载地址,草莓APP在线观看,草莓黄片软件下载,草莓视频成人在线无限观看

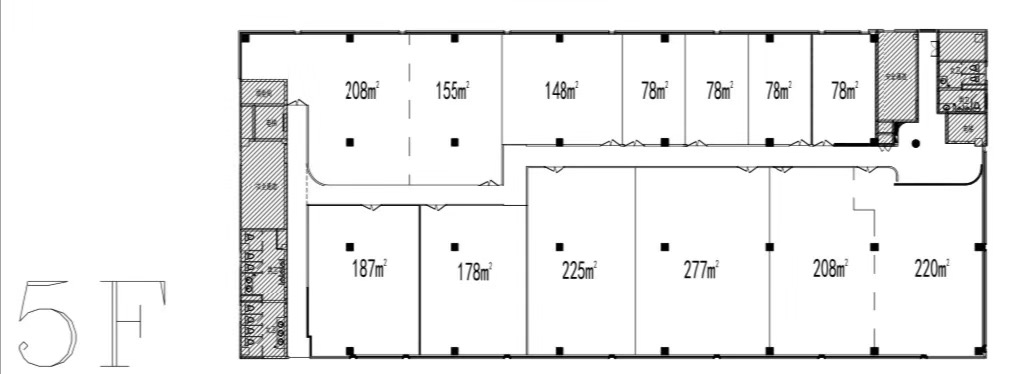
      大宁中心广场三期江空间,精装修配家具208平,直租

      分享
      2.66 万元/月
      • 单价:4.2元/㎡/天
      • 物业费:26.0元/㎡/月
      208㎡
      建筑面积
      20-30人
      容纳工位
      带装修家具
      装修
      • 闸 北-大宁
      • 1号线-上海马戏城
      • 宁汇广场•大宁中心广场三期

      房源专属顾问为您服务

      徐佳乐Jerry

      13052210023
      预约看房

      公共交通

      Public transit

      宁汇广场•大宁中心广场三期

      闸 北大宁灵石路718号

      网站地图