1. 草莓视频下载地址,草莓APP在线观看,草莓黄片软件下载,草莓视频成人在线无限观看

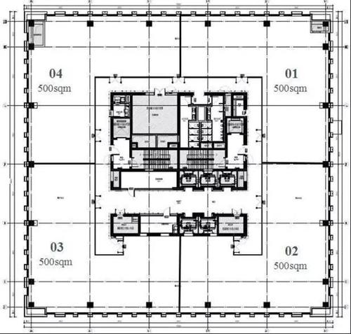
      华电大厦1000平,豪华装修,企业总部首选

      分享
      18.25 万元/月
      • 单价:6.0元/㎡/天
      • 物业费:35.0元/㎡/月
      1000㎡
      建筑面积
      80-120人
      容纳工位
      带装修家具
      装修
      • 浦 东-浦东世博滨江
      • 13号线-世博大道
      • 华电大厦

      房源专属顾问为您服务

      杨亦晗Cassie

      13167276699
      预约看房

      公共交通

      Public transit

      华电大厦

      浦 东浦东世博滨江国展路839号

      网站地图