1. 草莓视频下载地址,草莓APP在线观看,草莓黄片软件下载,草莓视频成人在线无限观看

      中骏天悦 小户型标交316平 户型方正 采光好 朝南

      分享
      4.90 万元/月
      • 单价:5.1元/㎡/天
      • 物业费:35.0元/㎡/月
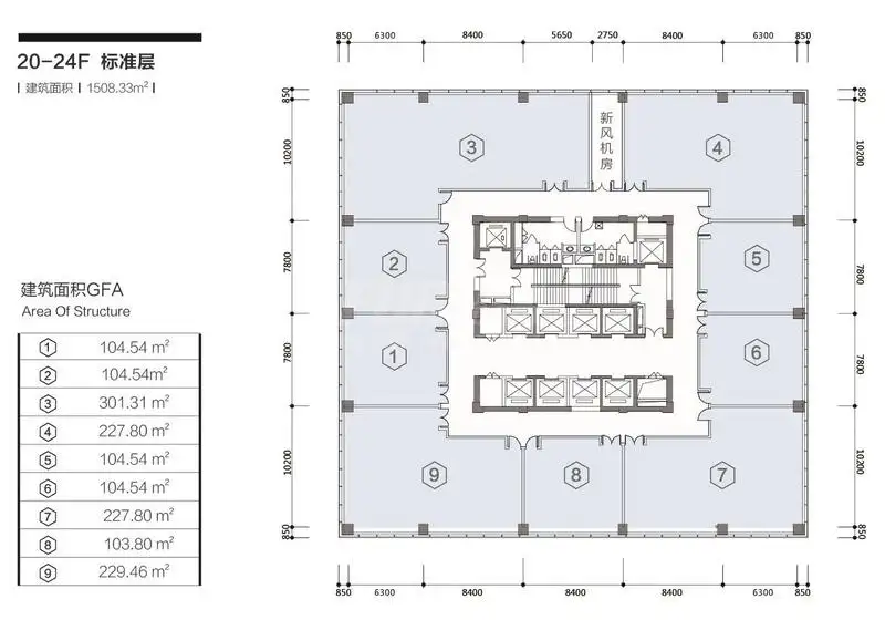
      316㎡
      建筑面积
      50
      容纳工位
      标准交房
      装修
      • 普 陀-真如
      • 11号线-真如、14号线-真如
      • 中骏天悦

      房源专属顾问为您服务

      徐佳乐Jerry

      13052210023
      预约看房

      公共交通

      Public transit

      中骏天悦

      普 陀真如固川路166弄

      网站地图