1. 草莓视频下载地址,草莓APP在线观看,草莓黄片软件下载,草莓视频成人在线无限观看

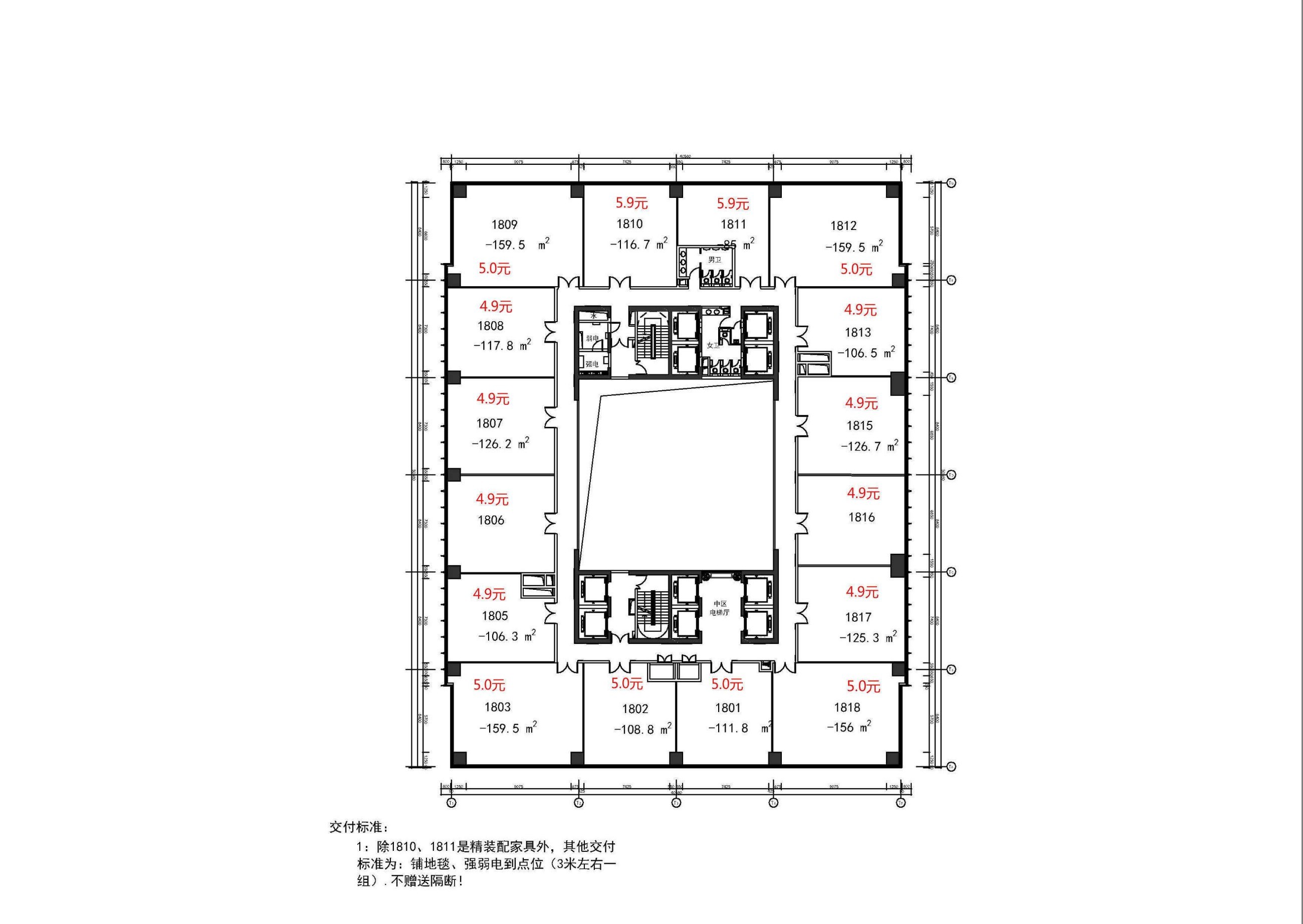
      莘庄龙之梦出租108方户型,精装修,拎包入驻

      分享
      1.96 万元/月
      • 单价:5.9元/㎡/天
      • 物业费:30.0元/㎡/月
      109㎡
      建筑面积
      10-20人
      容纳工位
      带装修家具
      装修
      • 闵 行 -莘庄商务区
      • 1号线-莘庄、5号线-莘庄
      • 莘庄龙之梦

      房源专属顾问为您服务

      江帅军Evan

      13052210023
      预约看房

      公共交通

      Public transit

      莘庄龙之梦

      闵 行 莘庄商务区沪闵路6088号

      网站地图